Dlaczego ludzie coraz częściej decydują się budować nieduże domy? Jakie są wady i zalety takiego rozwiązania? Dlaczego zdecydowaliśmy się budować mały dom? Przedstawiamy jego projekt.
Przede wszystkim zapraszamy Was do specjalnej grupy na FACEBOOKU Nietypowy DOM, gdzie będziecie mogli na bieżąco śledzić postępy prac i jako pierwsi zobaczycie wszystkie nowinki!
Z naszą decyzją o kupnie domu było, jak z dobrym przepisem na ciasto. Trochę racjonalnych składników i spontanicznych decyzji. O samej decyzji, przypadkach, mogliśmy poczytać w tym wpisie. Zaś o moich tipach przy poszukiwaniu działki budowlanej oraz o wyborze tzw. oferty kompaktowej, przeczytacie w poprzednim wpisie. Dzisiaj chcemy się skoncentrować na tym, o co pytacie najczęściej:
BUDUJEMY MAŁY DOM
Dom, na który się zdecydowaliśmy na niespełna osiemdziesiąt pięć metrów kwadratowych. Czy to dużo? Czy może nie za mało? Wszystko zależy od punktu widzenia, a dokładnie doświadczenia. Jeśli ktoś żył dotychczas w czterystumetrowej willi, to powierzchnia poniżej stu metrów jest niczym garaż dwustanowiskowy. Jeśli jednak żyliście do tej pory w bloku, na niespełna pięćdziesięciu metrach kwadratowych, poczujecie dodatnią zmianę. W lokalizacji, w której nasi przyjaciele zachęcili Nas do inwestycji zakupu działki oraz budowy domu, funkcjonują dwie opcje:
1. Działki o powierzchni 1500-1600m2, z projektem domu 155m2
2. Działki o powierzchni 600-1100m2, z projektem domu 85m2.
My wybraliśmy drugą opcję. Sto pięćdziesiąt pięć metrów ma dom mojej mamy. To jest dom dwurodzinny. Dla sześciu osób, do wygodnego życia. Czy tak duży dom na tym etapie był nam potrzebny? W żadnym wypadku. Jesteśmy młodym małżeństwem i ze wszystkimi naszymi planami, kupowanie dużej działki, z tak dużym domem byłoby po prostu błędem.
OSADZENIE DOMU NA DZIAŁCE
Na powyższej mapce nasza działka jest oznaczona żółtą strzałką. Działka znajduje się przy drodze. Nie jest to jednak droga asfaltowa, czy o dużym natężeniu ruchu,tylko droga szutrowa wzdłuż całej inwestycji. Mieliśmy możliwość zakupu działki w głębi, przy drodze wewnętrznej, ale jednomyślnie wybraliśmy działkę „przy drodze”. Po pierwsze z uwagi na wygodę. Jest to droga szutrowa, ale podlegająca pod gminę i odśnieżanie jej leży w gestii gminy właśnie. Po drugie, po przeciwnej stronie drogi znajdują się uprawy porzeczek, w związku z czym mamy piękną panoramę i widok, na coś więcej niż siatkę sąsiada.
Dom na działce jest osadzony w jej lewym rogu. I jest to naprawdę fenomenalnie przemyślane ułożenie. Właściwie większość działki pozostaje do naszej dyspozycji i zagospodarowania. Kształt litery „L”, z przewagą ekspozycji wschodniej i południowej to idealny układ.
Za domem przewidujemy wiatę lub/i garaż. Tam mamy północną elewację, bez okien rzecz jasna i jest do wymarzone miejsce do zagospodarowania pod takie przestrzenie właśnie.
BRYŁA DOMU I ELEWACJE
Jak widzicie, front elewacji jest bardzo prosty. Ma on ekspozycję zachodnią. Centralnie znajdują się drzwi wejściowe. Okno po lewej stronie, to okno jednej z sypialni. Po prawej stronie znajduje się okno kuchenne.
Elewacja frontowa naszego domu przeszła pewną modyfikację, którą zobaczycie na rysunku poniżej, a zrozumiecie dokładniej po analizie rzutu w dalszej części wpisu.
Dwa dodatkowe, małe okienka, które widzicie, to po lewej stronie to okno w łazience, zaś po prawej stronie okno w spiżarni. Okno w łazience zostało dodane już wcześniej przez wykonawców. Uważam je za bardzo praktyczne i wręcz niezbędne. Okno w spiżarni powstało przy projekcie domu naszych przyjaciół. Z jednej strony jego zadaniem było zachowanie symetrii w elewacji frontowej,z drugiej funkcja praktyczna : doświetlenia i wentylacji pomieszczenia gospodarczego (spiżarni).
Elewacja wschodnia domu zgodnie z pierwszym projektem wyglądała następująco:
Znajdowało się tutaj (patrząc od prawej strony): wyjście na działkę z jednej sypialni, bardzo małe okno (środkowe) kolejnej sypialni oraz dodatkowe wyjście na taras z salonu.
Jakich modyfikacji dokonaliśmy? Taras od strony wschodniej, nie jest moim zdaniem trafionym pomysłem. Nie w tej części Europy, z tak mizerną ilością dni słonecznych i czasu ich trwania. Całkowicie zrezygnowaliśmy więc z tarasu po wschodniej części domu. Okno balkonowe z salonu zastąpiliśmy dużym oknem panoramicznym. Nasi przyjaciele postawili tutaj na regularnej wielkości okno, ja, z doświadczenia mojej mamy i siostry, zapragnęłam dużego okna typu FIX. Ma ono wymiary 180x180cm i liczę, iż wspaniale doświetli strefę dzienną. Małe, środkowe okienko i okno balkonowe sypialni zamieniliśmy na regularne okna o szerokości 146,5cm. Uważam, że te zabiegi pozwolą nam racjonalnie wykorzystać nieduże pokoje (sypialnie) i dobrze je doświetlić.
Elewacja południowa, czyli taras pierwotnie zakładał regularne okno balkonowe o szerokości 180cm. Z uwagi na niedużą powierzchnię strefy dziennej z kuchnią (niespełna 30m2) oraz maksymalną chęć jej doświetlenia, zamieniliśmy to okno, na okno balkonowe przesuwne, o szerokości 220cm. Zyskamy dzięki temu nie tylko więcej światła, ale praktyczne wyjście na taras z domu, bez zabierania przestrzeni jadalni. Oczywiście takie drzwi balkonowe, dodatkowo z systemem pół-automatycznym, ułatwiającym otwieranie i zamykanie, kosztowały kilka tysięcy złotych ekstra. Natomiast ja, już dzisiaj, cieszę się z tej inwestycji. Widzę, ile miejsca zabierają drzwi balkonowe otwierane regularnie w domu mojej mamy oraz w domu naszych przyjaciół. Uważam, że było to ultra dobrym posunięciem i czekam z niecierpliwością na gotową bryłę domu, by ocenić je w praktyce!
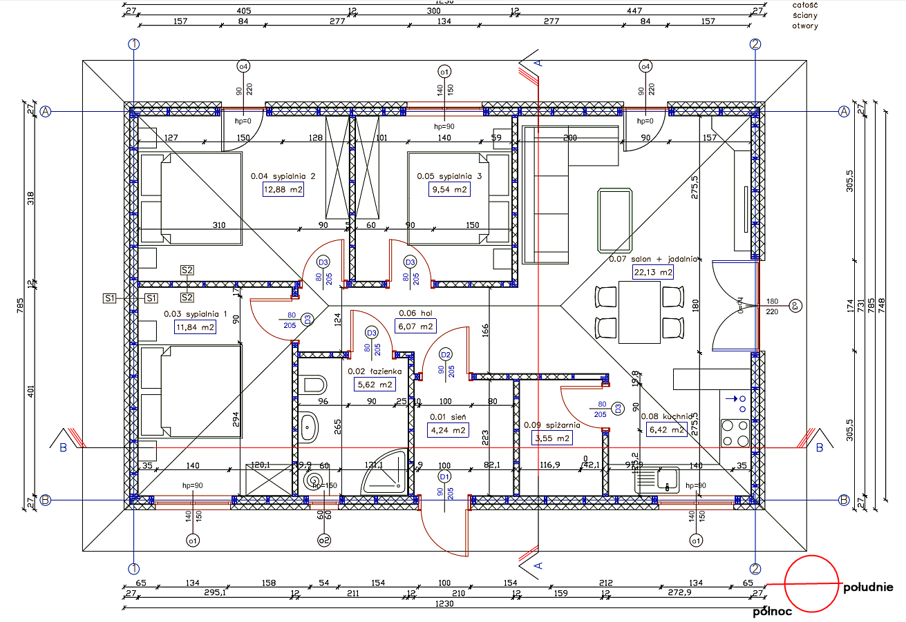
Projekt domu 85m2
Przejdźmy do mięska, tego co interesuje Was najbardziej, a więc powierzchni i układu domu.
Zgodnie z obliczeniami powinno być to 83m2. Co mieści się na takiej powierzchni? Czy rozkład jest praktyczny? Ile jest sypialni?
Zdecydowaliśmy, że taki metraż całkowicie zaspokaja nasze aktualne i przyszłe potrzeby. Trzy sypialnie i otwarta strefa dzienna, jedna łazienka, spiżarnia i przestronna, dobrze zagospodarowana działka. Myśląc o powiększeniu rodziny, nawet o kolejnych dwóch jej członków, realnie zakładamy, co wydarzy się w ciągu kolejnych kilkunastu lat. Możemy zdecydować się na powrót do miasta, wówczas z powodzeniem sprzedamy nieduży dom, na niedużej działce. Bierzemy również pod uwagę, że zostaniemy w nim na dłużej, dzieci wyjadą, a my zostaniemy z niedużym domem do dyspozycji.
W projekcie tego domku urzekła nas funkcjonalność. Dom podzielony jest na dwie strefy. W jego lewej części znajdują się trzy pokoje (sypialnie) oraz łazienka. W prawej części domu jest zaprojektowana: kuchnia, jadalnia oraz salon, a także spiżarka. To ostatnie pomieszczenie jest dla mnie sensacją, bo widziałam już domy o powierzchni 180m2, z pięcioma sypialniami, bez pralni, czy spiżarki właśnie.
Przedpokój, hall, sień, ma niespełna 5m2. Jest tutaj miejsce na dużą szafę. Może być to szafa w zabudowie, my, jak wiecie, postawimy na meble retro.
Sypialnie (pokoje) nie są duże i mają 10-13m2. Są jednak bardzo ustawne. W każdym z nich zmieści się pojemna szafa, co jest nie bez znaczenia przy domku o niedużej powierzchni użytkowej.
Poza miejscem na szafę w przedpokoju, szafy w pokojach, pomimo braku poddasza użytkowego, za przykładem naszych przyjaciół, zdecydowaliśmy się na wzmocnienie sufitu i wygospodarowanie niedużego schowka pod dachem. Wejście do niego prowadzi ze spiżarni. Już wiemy, oglądając gotowy dom naszych sąsiadów, że jest tam bardzo dużo miejsca (aż za dużo dla takiego chomika, jak ja!) na przechowywanie np. sezonowo ubrań.
W spiżarni jest miejsce na piec na ciepłą wodę oraz nawigację całego systemu ogrzewania wraz z panelem elektryki. Przy odpowiednim zagospodarowaniu tej niewielkiej przestrzeni, jest tutaj miejsce na pralkę, odkurzacz, mop, regały na przetwory, zapasy chemii gospodarczej. Pomieszczenie będzie to pełnić funkcję spiżarko/schowka.
Nasza łazienka ma niespełna 6m2 i posiada okno. Dla osób, par o normalnym wzroście jest tutaj miejsce na wannę. Niestety w przypadku Mariusza (201cm wzrostu), jak również z powodu mojej niechęci, w łazience znajdzie się prysznic. Duży i wygodny. Co jeszcze zmieścimy w łazience? Dowiecie się wkrótce. Nie zapomnijcie zapisać się na newsletter!
Kuchnia, jadalnia oraz salon znajdują się na powierzchni 28,5m2. W praktyce można tu zrobić bardzo pojemną zabudowę kuchenną w kształcie litery C, umiejscowić stół obok kuchni i strefę wypoczynku w głębi. Ja widzę przynajmniej dwie opcje zagospodarowania strefy wypoczynkowej. Dowiecie się o nich wkrótce!
Projekt wnętrza domu, który widzicie, przeszedł już, co najmniej, kilkanaście modyfikacji. W toku jego realizacji, wykonawca ulepszał go. Dla przykładu, pierwotnie projekt ten posiadał tylko dwie sypialnie. Osobiście uważam iż wyodrębnienie trzeciej sypialni kosztem salonu było bardzo trafionym pomysłem. Jak napisałam wyżej, w projekcie taras obejmował południową i wschodnią elewację. Od tej drugiej, większość inwestorów, słusznie moim zdaniem odeszła. W środku przedstawimy Wam jeszcze kilka modyfikacji. O wszystkim dowiecie się wkrótce.
POWIĘKSZENIE POWIERZCHNI DOMU
Projekt domu nie przewiduje możliwości jego rozbudowy. W związku z czym, my planujemy powiększyć powierzchnię użytkową domu o spory taras. O powierzchni 25m2 lub 40m2. Wszystko zależy od tego, co sprawdzi się w domu naszych przyjaciół. Chcę zobaczyć, jak będzie się im funkcjonowało na mniejszej powierzchni i zastanowić, czy chcemy inwestować w większą. Ja pragnę zmieścić na tarasie duży stół i stworzyć miejsce do relaksu. A może stworzymy mniejszy taras i dodatkową, chilloutową strefę w innym miejscu na działce? Są to plany raczej na 2019 rok. I bardzo się na nie cieszę.
W projekcie domu nie uwzględniono garażu, ale my planujemy go, lub/i wiatę w północnej części działki. Jest to miejsce, gdzie na ścianie budynku nie ma okien i dom w tym miejscu jest ustawiony najbliżej względem granicy działki. Garaż nie jest dla mnie koniecznością. Jeśli teraz podniosą się głosy osób, które go mają, że „zmienię zdanie zimą”, to powiem Wam, że moja mama mieszka 15 lat bez garażu i nie wybudowała go, choć mogła. Wystarczy odpalić auto 5-7 minut przed planowanym rozpoczęciem podróży. Garaż jest mi bardziej potrzebny w kontekście niedużego warsztatu/pracowni. A wiata przed garażem, na północnej ścianie domu, mogłaby pełnić funkcją ochronną dla samochodu. Tą część inwestycji planujemy również na 2019 rok.
KOLORYSTYKA
W prywatnych wiadomościach dość często pytaliście o kolorystykę. Cóż, przy gotowym projekcie jest ona bardzo ograniczona i dla przykładu nie mieliśmy wpływu na rodzaj dachu. Jest on z założenia czterospadowy, ale taki też nam się podoba. Jeśli chodzi o wybór kolorów elewacji, powiedzmy sobie szczerze, nie jest on zbyt szeroki. Elewacja powinna być jasna. Jeśli ktoś lubi, wybierze beże lub kolor żółty, my poszliśmy w bezpieczny standard i zdecydowaliśmy się na białą elewacją budynku. Kolorystyka dachu, a także okien od strony zewnętrznej, rynien, drzwi wejściowych, również jest bardzo skąpa. Wybierać możemy pomiędzy kolorem: białym, brązowym, czerwonym, szarym i antracytowym. I mimo, że jestem swoistego rodzaju ekscentryczką, traktując nasz dom również jako inwestycję, postawiliśmy na ten ostatni kolor z listy.
Jeśli chodzi o inne domy w tej lokalizacji, inwestycji, są różne. Tzn. bazują na tym samym projekcie, ale kolory dachów, czy chociażby ogrodzenia działek i bramy, różnią się od siebie. Uważam, iż każdy ma prawo do własnego gustu i wyboru. Królują bezpieczne brązy, dla mnie już trochę przeterminowane. Antracyt z bielą jest bardzo popularny w budownictwie teraz generalnie i mam nadzieję, że za 5-10 lat, nie będę patrzyła na niego, jak na brązowe dachy w chwili obecnej. Ale któż to wie ? Czas pokaże.
A tutaj zapraszam Was na odcinek serialu BUDUJEMY DOM:
Tak będzie wyglądał nasz dom.
Zdradziliśmy Wam jego powierzchnię i projekt.
Czekamy na Wasze doświadczenia. Piszcie!









